




85470 Bretignolles-sur-Mer
A 500 de la Mer et Plage des DUNES, sur un terrain de 326 m², une maison rénovée en 2023 avec plusieurs possibilités d’agencement comme par exemple: 3 à 6 chambres, 1 ou 2 logements ou un local professionnel avec une habitation.
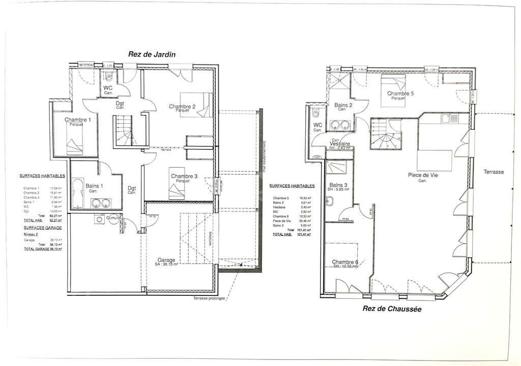
Aujourd’hui le bien est sur 2 niveaux en rez-de-jardin d’environ 183 m² hab., comprenant au RDJ N°1= un grand séjour/cuisine, un vestiaire, un wc, une suite parentale avec une SDE, une terrasse couverte et au RDJ= 2 chambres, un dgt, une SDB, un WC, un bureau, une salle de jeux et un garage à vélo. Idéale pour vivre en toutes saisons proche Mer et plage.
Ajout : novembre 3, 2025
Proximité plage de la Parée, appartement de 2 pièces avec loggia vue dégagée